CHAMONIX, chalet en copropriété, 4 pièces, garage et parking extérieur.
- 4 pièces
- 3 chambres
- 84.00 m2
- Chamonix-Mont-Blanc
Description
Alpes Office immobilier vous propose à CHAMONIX MONT-BLANC, Les Tines :
Dans une petite copropriété de 3 lots neufs. Découvrez ce chalet en cours de construction situé dans un secteur très prisé de Chamonix.
Ce bien immobilier offre une opportunité exceptionnelle de profiter et d’investir dans une région de forte notoriété, réputée pour ses paysages à couper le souffle, son calme, sa qualité de vie et une multitude d’activités.
Caractéristiques du chalet :
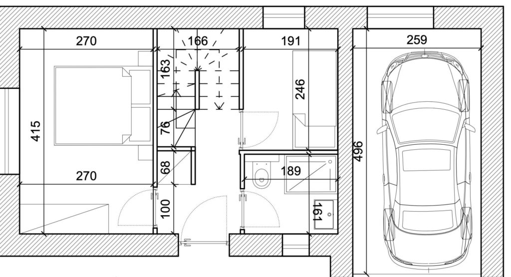
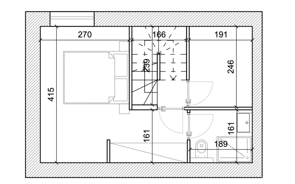
Construction : Chalet Neuf comprenant une agréable pièce à vivre, 2 chambres et une chambre cabine avec garage et parking extérieur.
Localisation : Chamonix, secteur Les Tines.
Proximité : Balades, golf, et téléphérique de la Flégère pour un accès direct aux pistes de ski, bus et train.
Avantages financiers : Frais de notaires réduits, possibilité de récupérer la TVA pour le régime de la para-hôtellerie (pas d’obligation).
Ne manquez pas cette opportunité unique d’acquérir un bien immobilier d’exception à Chamonix. Pour plus d’informations et pour organiser une visite, veuillez nous contacter dès aujourd’hui.
Les informations sur les risques auxquels ce bien est exposé sont disponibles sur le site Géorisques : www.georisques.gouv.fr
RSAC : 822 037 883
Honoraires à la charge du vendeur. Dans une copropriété de 4 lots. Aucune procédure n’est en cours. DPE en cours. Les informations sur les risques auxquels ce bien est exposé sont disponibles sur le site Géorisques : georisques.gouv.fr.
Votre conseiller Alpes Office Immobilier : Agent Immobilier – Alpes Office Immobilier – Anthony Minié.
Hauts Sommets Immobilier – L’immobilier au cœur des Alpes !
Haute-Savoie | Savoie | Ain
Caractéristiques
- Typologie : Maison 4 pièces
- Superficie : 84.00 m2
- Commune : Chamonix-Mont-Blanc (74400)
- Nombre de chambres : 3 chambres
- Année de construction : 2024
Diagnostiques de performance énergétique
Information copropriété
- Bien en copropriété : Oui
- Nombre de lots dans la copropriété : 4
- Nombre de lots dans la copropriété : 4
- Nombre de lots dans la copropriété (formatté) : Nombre total de lots de la copropriété : 4
- Procédure en cours : Procédures contre copropriété/syndic : Non






